Bekanntmachung des Satzungsbeschlusses zum Bebauungsplan „Sonder- / Gewerbegebiet Am Silberpark“
einschließlich der Teilaufhebung des Bebauungsplanes Nr. 17 „Gewerbegebiet Nord“ für das Grundstück Flur Nr. 3502/3
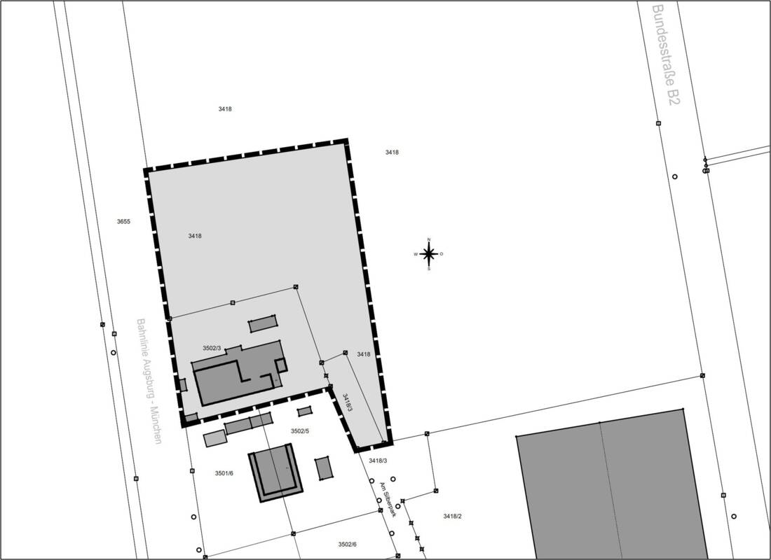
Die Gemeinde Kissing hat mit Beschluss des Gemeinderates vom 20.02.2025 den Bebauungsplan „Sonder- / Gewerbegebiet Am Silberpark“ einschließlich der Teilaufhebung des Bebauungsplanes Nr. 17 „Gewerbegebiet Nord“ für das Grundstück Flur Nr. 3502/3, bestehend aus der Planzeichnung (Teil A) und dem Textteil (Teil B), jeweils in der Fassung vom 20.02.2025, als Satzung beschlossen. Die Begründung mit Umweltbericht (Teil C), ebenfalls in der Fassung vom 20.02.2025, wurde als Bestandteil des Bebauungsplanes „Sonder- / Gewerbegebiet Am Silberpark“ einschließlich der Teilaufhebung des Bebauungsplanes Nr. 17 „Gewerbegebiet Nord“ für das Grundstück Flur Nr. 3502/3 gebilligt. Der Bebauungsplan „Sonder- / Gewerbegebiet Am Silberpark“ einschließlich der Teilaufhebung des Bebauungsplanes Nr. 17 „Gewerbegebiet Nord“ für das Grundstück Flur Nr. 3502/3 umfasst den Bereich des Grundstückes Flur Nr. 3502/3 sowie Teilflächen der Grundstücke Flur Nrn. 3418 und 3418/3 („Am Silberpark“), jeweils Gemarkung Kissing, zwischen der Münchener Straße (B2) und der Bahnlinie Augsburg - München am nördlichen Rand der Ortslage Kissing.
Der Satzungsbeschluss wird hiermit gemäß § 10 Abs. 3 des Baugesetzbuches (BauGB) ortsüblich bekannt gemacht. Mit dieser Bekanntmachung tritt der Bebauungsplan „Sonder- / Gewerbegebiet Am Silberpark“ einschließlich der Teilaufhebung des Bebauungsplanes Nr. 17 „Gewerbegebiet Nord“ für das Grundstück Flur Nr. 3502/3 in Kraft.
Jedermann kann den Bebauungsplan „Sonder- / Gewerbegebiet Am Silberpark“ einschließlich der Teilaufhebung des Bebauungsplanes Nr. 17 „Gewerbegebiet Nord“ für das Grundstück Flur Nr. 3502/3, bestehend aus der Planzeichnung (Teil A), dem Textteil (Teil B) und der Begründung mit Umweltbericht (Teil C) sowie die zusammenfassende Erklärung über die Art und Weise, wie die Umweltbelange und die Ergebnisse der Öffentlichkeits- und Behördenbeteiligung in dem Bebauungsplan berücksichtigt wurden, und aus welchen Gründen der Plan nach Abwägung mit den geprüften, in Betracht kommenden anderweitigen Planungsmöglichkeiten gewählt wurde, im Rathaus der Gemeinde Kissing, Pestalozzistraße 5, 86438 Kissing während der üblichen Dienststunden einsehen und über deren Inhalt Auskunft verlangen. Darüber hinaus können die Unterlagen auch auf der Homepage der Gemeinde Kissing unter https://kissing.de/leben-wohnen/planen-bauen/bauleitplaung eingesehen werden.
Auf die Voraussetzungen für die Geltendmachung der Verletzung von Verfahrens- und Formvorschriften und von Mängeln der Abwägung sowie die Rechtsfolgen des § 215 Abs. 1 BauGB wird hingewiesen.
Unbeachtlich werden demnach:
- eine nach § 214 Abs. 1 Satz 1 Nr. 1 bis 3 BauGB beachtliche Verletzung der dort bezeichneten Verfahrens- und Formvorschriften,
- eine unter Berücksichtigung des § 214 Abs. 2 BauGB beachtliche Verletzung der Vorschriften über das Verhältnis des Bebauungsplans und des Flächennutzungsplans,
- nach § 214 Abs. 3 Satz 2 BauGB beachtliche Mängel des Abwägungsvorgangs,
wenn sie nicht innerhalb eines Jahres seit Bekanntmachung des Bebauungsplanes „Sonder- / Gewerbegebiet Am Silberpark“ einschließlich der Teilaufhebung des Bebauungsplanes Nr. 17 „Gewerbegebiet Nord“ für das Grundstück Flur Nr. 3502/3 schriftlich gegenüber der Gemeinde geltend gemacht worden sind; der Sachverhalt, der die Verletzung oder den Mangel begründen soll, ist darzulegen. Außerdem wird auf die Vorschriften des § 44 Abs. 3 Satz 1 und 2 sowie Abs. 4 BauGB hingewiesen. Danach erlöschen Entschädigungsansprüche für nach den §§ 39 bis 42 BauGB eingetretene Vermögensnachteile, wenn nicht innerhalb von drei Jahren nach Ablauf des Kalenderjahres, in dem die Vermögensnachteile eingetreten sind, die Fälligkeit des Anspruches herbeigeführt wird.









